
Gosford Library




Gosford Regional Library
CLIENT: Central Coast Council
country: Darkinjung nation
Location: gosford, nsw
completed: ongoing
MAP: VIEW
PROJECT SHEET: DOWNLOAD
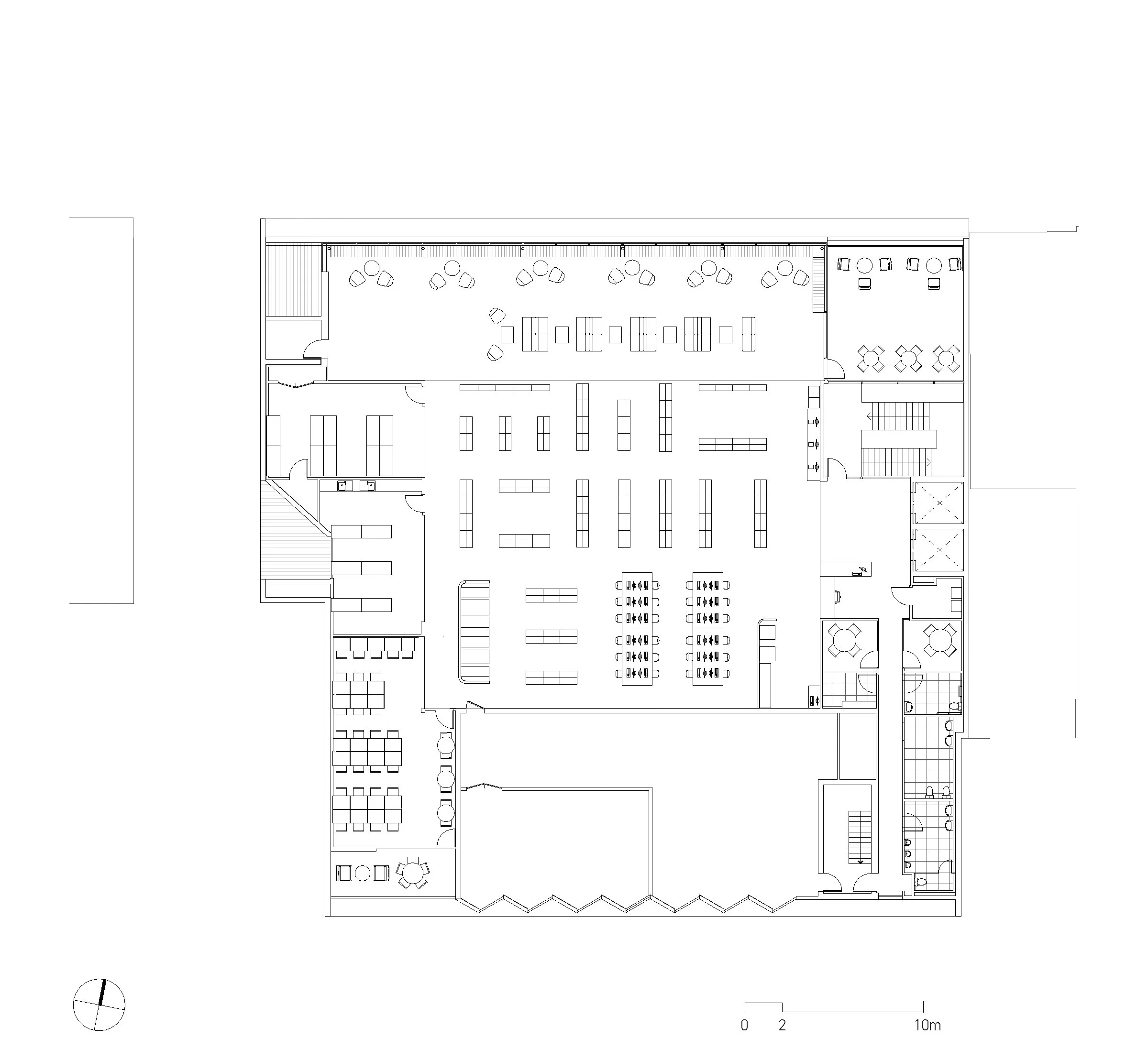
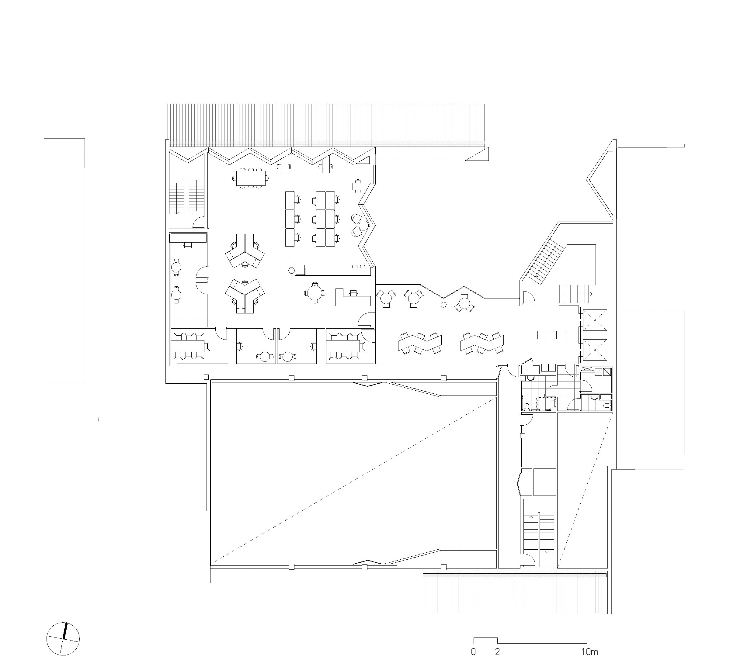
The Gosford Regional Library has been designed to generate a civic presence within the Municipal Heart of Gosford.
The building is entered through a semi-outdoors landscaped forecourt named the ‘Neighbourhood Room’. It is a covered space that connects three levels of the building and provides a weather protected and gently tempered environment. It contains tall mature Cabbage Tree palms, a plant synonymous with the natural environment of the Central Coast.
A ‘Public Living Room’, containing the main library collection and reading spaces, is at the top of the building running the full width of the north façade; where iconic views toward Presidents Hill and Rumbalara Reserve are at their best.
The children’s library is located on the street front with extensive glazing that helps to animate the street and promote the early learning activities within.
The library also includes; multi-function meetings spaces of varying sizes, wet and dry maker spaces, a recording studio, innovation hub, exhibition and local history collection.



